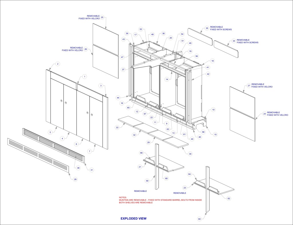
Tot ceea ce trebuie construit ar necesita un fel de desene.
Ca atare ne-am adaptat la majoritatea cerințelor necesare pentru a construi un produs de mobilier.
Dacă este un produs care trebuie făcut manual sau un produs care urmează să fie tăiat CNC și construit ulterior, putem crea un pachet de desene care să conțină vederile principale, secțiunile, detaliile și câteva vederi explodate minunate, astfel încât tamplarii dunmeavoastră să aibă un timp bun pentru asamblare.


