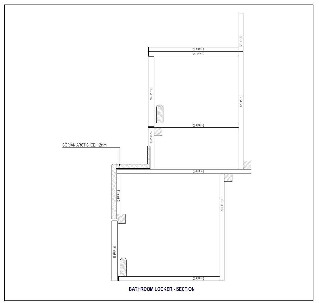
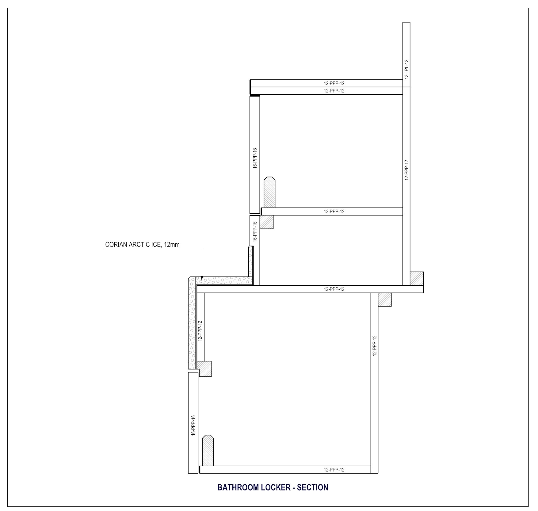
Cu siguranță este nevoie de desene de construcție, fie pentru un produs de mobilier fie pentru un iaht întreg.
Aceste detalii definesc modul în care urmează să fie realizată mobila în atelierul de tamplarie. Este un proces mai lung și face o diferență enormă pe termen lung. Anumite aspecte de îmbinare și întrebări sunt rezolvate în timpul acestui proces, cum ar fi, modul în care montantul și panoul lateral trebuie să fie îmbinați împreună, stabilirea dacă butonul de apăsare pentru deschidere este bun pentru sertar cât și pentru ușa dulapului sau dacă glisierele pentru sertar vor lovi spatele dulapului.
Toate detaliile pot fi făcute de la zero sau putem folosi detaliile deja existente de șantierul naval sau de fabrică. În esență, toate acestea urmează să fie discutate și agreate de toate părțile implicate în proiect.




